$12,000
$17,900
33.0%For more information regarding the value of a property, please contact us for a free consultation.
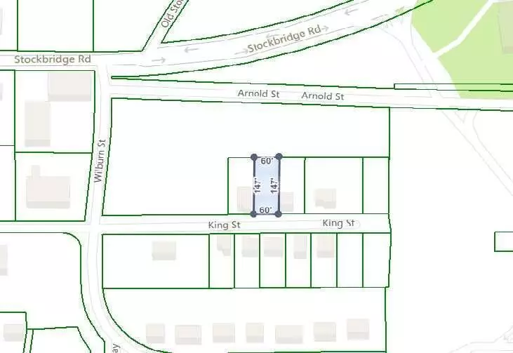
0 King ST #LOT 12 Jonesboro, GA 30236
8,842 Sqft Lot
Key Details
Sold Price $12,000
Property Type Vacant Land
Sub Type Residential Lot
Listing Status Sold
Purchase Type For Sale
Subdivision Wingo Sophie
MLS Listing ID 10149288
Sold Date 09/26/23
HOA Y/N No
Annual Tax Amount $220
Tax Year 2022
Lot Size 8,842 Sqft
Acres 0.203
Lot Dimensions 8842.68
Property Sub-Type Residential Lot
Source Georgia MLS 2
Property Description
Vacant city lot ready to be developed.
Location
State GA
County Clayton
Rooms
Other Rooms None
Interior
Fireplace No
Exterior
Community Features None
Utilities Available Other
View Y/N Yes
View City
Private Pool No
Building
Lot Description Cul-De-Sac
Faces Located between 209 and 211 King St, Jonesburo. Use those addresses.
Sewer Public Sewer
Water Public
New Construction No
Schools
Elementary Schools Arnold
Middle Schools Jonesboro
High Schools Jonesboro
Others
Tax ID 120016A00D004
Read Less
Want to know what your home might be worth? Contact us for a FREE valuation!

Our team is ready to help you sell your home for the highest possible price ASAP

© 2025 Georgia Multiple Listing Service. All Rights Reserved.



